«En Configuración SL desarrollamos una serie de iniciativas que puedan ayudar a facilitar la vida en las ciudades»

Nuestro objetivo es lograr una mayor conciencia y aprecio entre los poderes e instituciones públicas así como organizaciones no gubernamentales, sobre diversos temas de interés en el ámbito de la arquitectura y el urbansimo.

ponencia-fabrica-de-gas-y-electricidad-de-oviedo

PONENCIA FÁBRICA DE GAS Y ELECTRICIDAD DE OVIEDO
COLEGIO OFICIAL DE ARQUITECTOS DE ASTURIAS

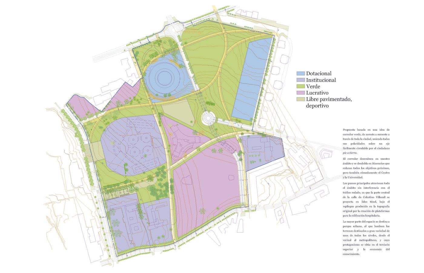
propuesta-ordenacion-ambito-urbano-antiguo-hospital-del-cristo-01

PROPUESTA ORDENACIÓN ÁMBITO URBANO DEL ANTIGUO HOSPITAL DE EL CRISTO
OVIEDO – ASTURIAS

ENTENDER UN EJE URBANO, TRANSFORMAR UNA CIUDAD
OVIEDO – ASTURIAS